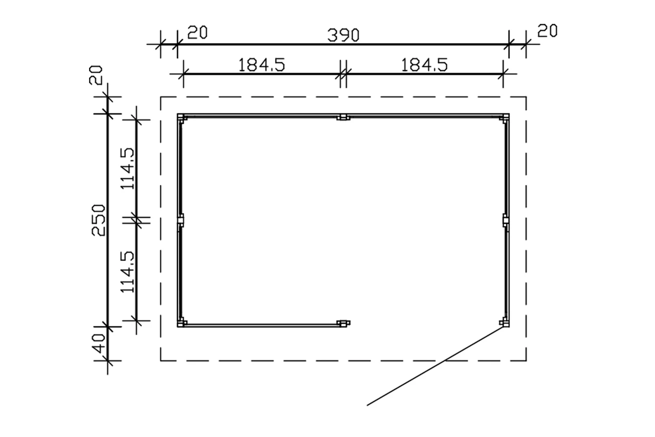
Laius
390
cm
Sügavus
250
cm
Pindala
9.75
m2
Esiseina kõrgus
242
cm
Tagaseina kõrgus
201
cm
Katuse pindala
14
m2
Katuselaudis
19
mm
Bituumenist katusekate komplektis
Ei
Katusekalle
3
°
Katuse üleulatus ees
40
cm
Katuse üleulatus külgedel/taga
20
cm
Ukse mõõt
180x200
cm
Ehitusluba vajalik
Ei
Paki mõõdud (P x L x K)
320
×
120
×
50
cm
Paki kaal
675
kg
Tellimiskood
761869
Standardkomplekt
