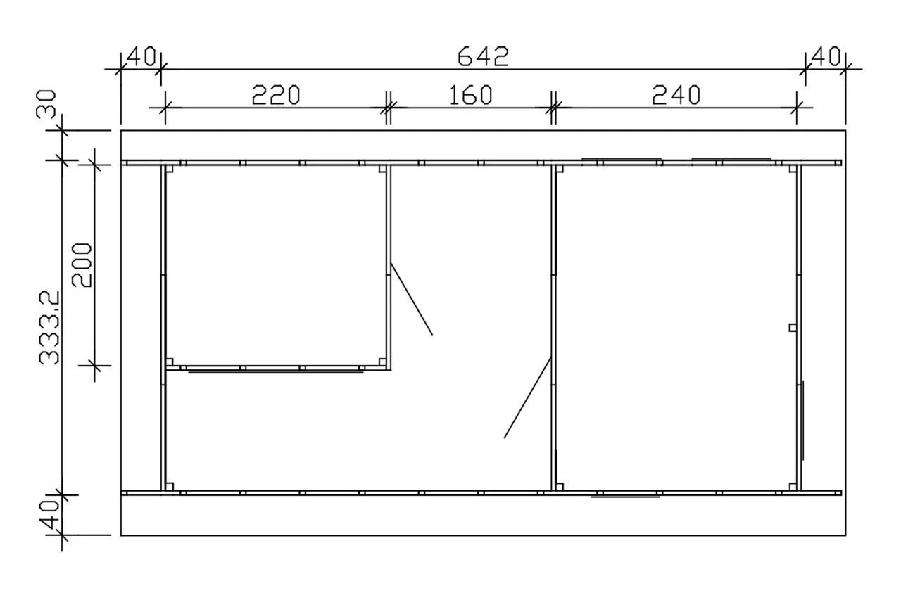
Laius
637
cm
Sügavus
333
cm
Pindala
21.2121
m2
Esiseina kõrgus
282
cm
Tagaseina kõrgus
230
cm
Põrand
28
mm
Katuse pindala
30
m2
Katuselaudis
19
mm
Bituumenist katusekate komplektis
Ei
Katusekalle
7
°
Ukse mõõt
90x193; 85x193
cm
Akna mõõt
(3x) 75x40; 170x77; 64x130
cm
Komplektis ei sisaldu
Sauna lavakomplekt
Ehitusluba vajalik
Jah
Paki mõõdud (P x L x K)
550
×
120
×
105
cm
Paki kaal
1980
kg
Tellimiskood
761319
Standardkomplekt
